113 m²

Kerrosala

102 m²

Huoneistoala

2-4 vko

Työmaa-aika

6 999 kWh

Hirsi-Kukkola SL

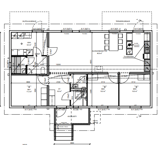
3MH, TUPAKEITTIÖ SAAREKKEELLA, WC, PH, S, KHH, VH

Hirsi-Kukkola SL on saanut inspiraation suositun Hirsi-Kukkola S -mallin pohjalta. Tässä mallissa leveämpi olohuone-keittiömoduuli maksimoi yhteisen oleskelutilan.

Kolme makuuhuonetta ja tyylikäs olohuone-keittiö saarekkeella tekevät tästä mallista moneen tarpeeseen muuntautuvan kokonaisuuden. Tämän mallin kodinhoitohuone on saanut paljon kiitosta toimivuudestaan.

Tähän malliin on mahdollista valita takapihan puolelle sijoitettava saunan vilvoitteluterassi lisähintaan.

Huoneistoala 102 m² ja rakennusala 113 m².

”Valitse alue” -kohdasta näet muuttovalmiin talon hinnan paikkakunnallesi. Toimituskulut eivät sisälly hintaan, kysy lisätietoja alueesi edustajalta.

Talopaketin vakiotoimitussisältöön kuuluu aina täydellinen maalämpö. 

Julkisivukuvat saattavat sisältää lisävarusteita. Pidätämme oikeuden teknisistä syistä johtuviin hintavirheisiin hintatyökalussa.

Muuttovalmiin talopaketin hinta

Tuotteiden Hinnat

Vuosikulutus

Tämän talon todelliset kulutuslukemat.

6 999 kWh

Laskennallinen vuosikulutus

Tämä on E-todistuksen mukainen todellinen ostoenergia per vuosi, kun talossa on Future-seinärakenne ja maalämpö. Koko mallisto on laskettu näiden oletusten pohjalle, jotta lukemat ovat keskenään vertailukelpoisia.

Ota yhteyttä myyjään​

Katso miten valmistuu Kiiruna talot​