Hirsi-Puuluoto SL
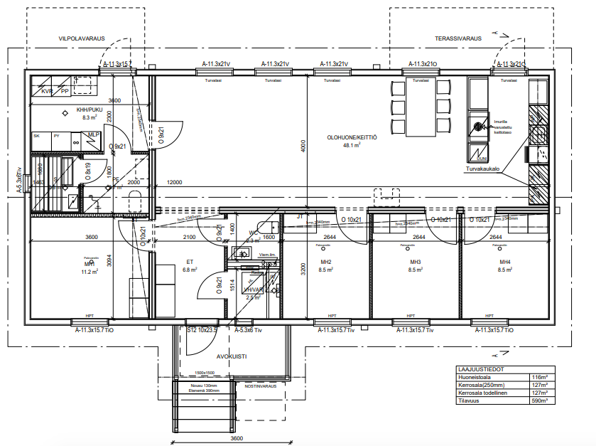
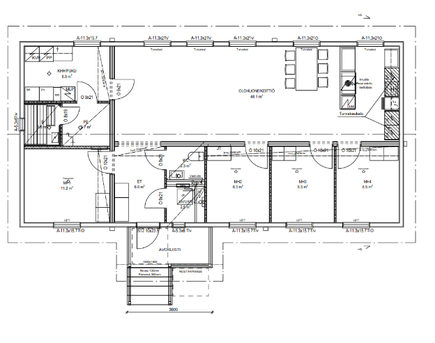
4 MH, OLOHUONE-KEITTIÖ, KHH, WC, KPH, S, VHH, ET
Hirsi-Puuluoto SL on neljän makuuhuoneen hirsikoti, joka on saanut inspiraationsa Hirsi-Puuluoto S -mallin pohjalta. Tässä mallissa leveämpi olohuone-keittiömoduuli maksimoi yhteisen oleskelutilan.
Talon suurin makuuhuone on pääsisäänkäynnin yhteydessä erillään kolmesta muusta makuuhuoneesta. Tämän kodin kodinhoitohuone-sauna -osasto on viime vuosina toimivaksi ja suosituksi osoittautunut kokonaisuus.
Puuluoto on kaunis ja toimiva hirsikoti isollekin perheelle tai tilanteeseen, jossa kodissa tulee olla esimerkiksi useampi etätyön mahdollistava huone.
Huoneistoala 115 m² ja rakennusala 126 m²
Alta ”valitse alue” -kohdasta näet muuttovalmiin hirsitalon hinnan paikkakunnallesi.
Toimituskulut eivät sisälly hintaan, kysy lisätietoja alueesi edustajalta.
Hirsitalopaketin vakiotoimitussisältöön kuuluu aina täydellinen maalämpö.
Julkisivukuvat saattavat sisältää lisävarusteita. Pidätämme oikeuden teknisistä syistä johtuviin hintavirheisiin hintatyökalussa.

