Kukkola 118 S
3MH, TUPAKEITTIÖ SAAREKKEELLA, WC, PH, S, KHH, VH
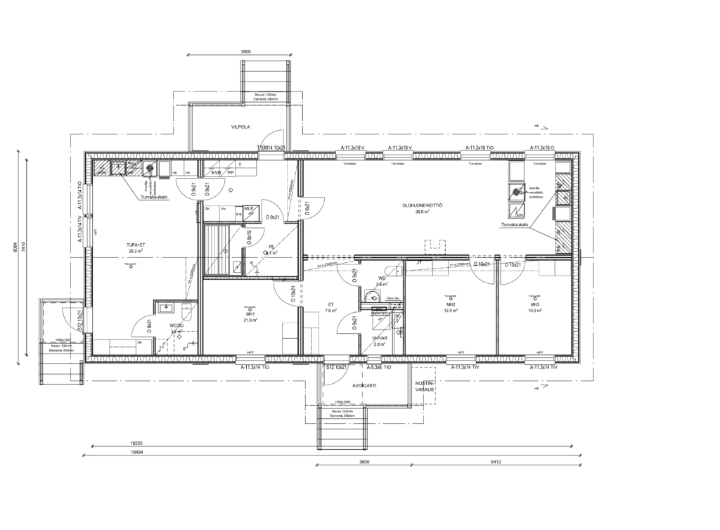
Kukkola 118 S eli saunamestari on koti, jossa sekä saunan vilvoitteluterassi että suuri takaterassi on sijoitettu takapihan puolelle.
Kolme makuuhuonetta ja tyylikäs olohuone-keittiö saarekkeella tekevät tästä mallista moneen tarpeeseen muuntautuvan kokonaisuuden. Tämän mallin kodinhoitohuone on saanut paljon kiitosta toimivuudestaan.
Huoneistoala 102 m², rakennusala 118 m²
Mikäli toiveissa on kodin yhteyteen sivuasunto esimerkiksi vuokrauskäyttöön tai kahden sukupolven asuinkokonaisuudeksi, Kukkola S -malliin on ostettavissa myös lisämoduuli. Tutustu tähän pohjakuvaan galleriassa, ja kysy lisätietoja alueesi edustajalta.
Alta ”valitse alue” -kohdasta näet muuttovalmiin talon hinnan paikkakunnallesi.
Toimituskulut eivät sisälly hintaan, kysy lisätietoja alueesi edustajalta.
Talopaketin vakiotoimitussisältöön kuuluu aina täydellinen maalämpö.
Julkisivukuvat saattavat sisältää lisävarusteita. Pidätämme oikeuden teknisistä syistä johtuviin hintavirheisiin hintatyökalussa.


