133 m²

Kerrosala

115 m²

Huoneistoala

2-4 vko

Työmaa-aika

6 122 kWh

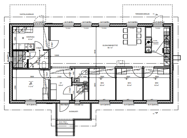
Puuluoto 133 SL

4 MH, OLOHUONE-KEITTIÖ, KHH, WC, KPH, S, VHH, ET 

Puuluoto 133 SL on neljän makuuhuoneen koti, joka on saanut inspiraationsa Puuluoto 133 S -mallin pohjalta. Tässä mallissa leveämpi olohuone-keittiömoduuli maksimoi yhteisen oleskelutilan.

Talon suurin makuuhuone on pääsisäänkäynnin yhteydessä erillään kolmesta muusta makuuhuoneesta. Tämän kodin kodinhoitohuone-sauna -osasto on viime vuosina toimivaksi ja suosituksi osoittautunut kokonaisuus.

Puuluoto on kaunis ja toimiva koti isollekin perheelle tai tilanteeseen, jossa kodissa tulee olla esimerkiksi useampi etätyön mahdollistava huone.

Huoneistoala 115 m² ja rakennusala 133 m²

Alta ”valitse alue” -kohdasta näet muuttovalmiin talon hinnan paikkakunnallesi.

Toimituskulut eivät sisälly hintaan, kysy lisätietoja alueesi edustajalta.

Talopaketin vakiotoimitussisältöön kuuluu aina täydellinen maalämpö. 

Julkisivukuvat saattavat sisältää lisävarusteita. Pidätämme oikeuden teknisistä syistä johtuviin hintavirheisiin hintatyökalussa.

 

Muuttovalmiin talopaketin hinta

Tuotteiden Hinnat

Vuosikulutus

Tämän talon todelliset kulutuslukemat.

6 122 kWh

Laskennallinen vuosikulutus

Tämä on E-todistuksen mukainen todellinen ostoenergia per vuosi, kun talossa on Future-seinärakenne ja maalämpö. Koko mallisto on laskettu näiden oletusten pohjalle, jotta lukemat ovat keskenään vertailukelpoisia.

Ota yhteyttä myyjään​

Katso miten valmistuu Kiiruna talot​

Talotehdas ja avaimet käteen hirsitalo
Tietosuojakäytäntö

This website uses cookies so that we can provide you with the best user experience possible. Cookie information is stored in your browser and performs functions such as recognising you when you return to our website and helping our team to understand which sections of the website you find most interesting and useful.